back-button← späť

Rodinný dom Abaújdevecser, Maďarsko

Predaj, Vidiecky dom, Encs-Abaújdevecser, Pôvodný stav

Cena: 27 500

130 m2

2600 m2

3 Izby

2 livingrooms

1 Spálňa

Údaje nehnuteľnosti

ID nehnuteľnosti: 1036
Druh ponuky: Predaj
Druh nehnuteľnosti: Vidiecky dom
Mesto/obec: Encs-Abaújdevecser
Stav nehnuteľnosti: Pôvodný stav
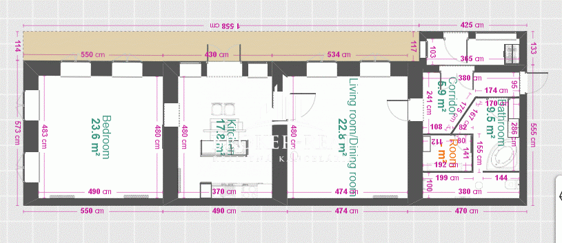
Úžitková plocha: 130m2
Plocha pozemku: 2600m2
Vlastníctvo: Osobné vlastníctvo
Parkovacie miesto: vo dvore
Pivnica: Áno
Okná: Pôvodné
Počet izieb: 3
Počet obývacích izieb: 2
Počet spální: 1
Počet kuchyň: 1

Popis nehnuteľnosti

Rodinný dom 3 - izbový v mestečku Encs, časť Devecser - Maďarsko. Hlavnú stavbu tvorí čiastočne podpivničený rodinný dom vidieckeho typu v pôvodnom stave vhodnom na rekonštrukciu. Súčasťou domu sú technicko hospodárske miestnosti vhodné na vytvorenie ďalších obytných priestorov. Prístup na mierne svahovitý pozemok v tvare obdĺžnika je drevenou bránou z asfaltovej komunikácie. Pozemok je oplotený, delený na časť predzáhradka, dvor predný, dvor zadný a zatrávnená záhrada. Parkovanie možné na dvore . Obec je časťou mestečka ENCS. Nehnuteľnosť je umiestnená v nezáplavovom pásme, bez ťarchy, voľná po dohode, spravidla do dvoch týždňov. Dom je v pôvodnom stave vhodnom na rekonštrukciu.
Ak sa Vám inzerát nezobrazuje celý, nájdete ho na našej stránke...broker-real.sk : ID- 1036
Zverejnené údaje v texte sú na základe informácií od vlastníka nehnuteľnosti.

Plochy: Pozemok 2600 m2, úžitková plocha 130 m2
Technický popis: Konštrukcia objektu: MURIVO : kameň. STROPY : drevené hranoly priznané. PODLAHY : betónové, gumolit, drevené, dlažba. STENY : omietky. VONKAJŠIA OMIETKA : Vápenná. OKNÁ : pôvodné dvojité drevené. DVERE : Pôvodné drevené. STRECHA : sedlová, prikrytá pálenou škridľou na drevenom krove. ELEKTRICKÁ PRÍPOJKA : zavedená do domu vzduchom. KANALIZÁCIA : prípojka na verejnú kanalizáciu na pozemku. KÚRENIE : plynové gamatky, piecky na tuhé palivo. VODA : obecný vodovod, kopaná studňa. Suché WC.

Výhody: Cena nami ponúkanej nehnuteľnosti je stanovená vlastníkom a zahŕňa poplatky: kúpna zmluva a overenie, zavkladovanie nehnuteľnosti prostredníctvom autorizovaného právnika, odovzdanie a prepis energií u dodávateľov, tlmočenie pred úradmi.
Ceny nehnuteľností sa môžu meniť v súvislosti so zmenou kurzu v danom čase.
Ďalšie informácie obdržíte v našej kancelárii, termín osobného stretnutia alebo obhliadky si dohodnite na telefónnom čísle + 421 917 484 501.
Váš spoľahlivý realitný maklér a poradca ®.

Technická specifikácia

  • Základy - Kameň
  • Typ konštrukcie - Kameň
  • Strecha - Valbová
  • Strešná krytina - Pálená škridla
  • Steny - Kameň
  • Podlaha - Drevená podlaha
  • Podlaha - Linoleum
  • Podlaha - Keramická dlažba
  • Podlaha - Liaty betón
  • Strop - Drevený
  • Okná - Staré drevené okná
  • Vstupné dvere - Drevené
  • Inžinierske siete - Áno
  • Prípojka vody - Verejný vodovod
  • Prípojka vody - Studňa
  • Prípojka kanalizácie - Áno
  • Prípojka plynu - Verejný plynovod
  • Prípojka elektriky - Vzduchom
  • Prípojka elektriky - 240V
  • Kúrenie - Plynová gamatka
  • Kúrenie - Drevom

Kontakt na predajcu

Zdieľať na Facebooku

Máte záujem o túto nehnuteľnosť?

Napíšte nám

Kliknutím na tlačidlo ODOSLAŤ súhlasíte so spracovaním Vami zadaných údajov za účelom zodpovedania otázky či podnetu adresátom správy, ktorým je spoločnosť ADAK SK, s.r.o. . Bližšie informácie o spracovaní a ochrane osobných údajov nájdete v sekcii "GDPR - Spracovanie osobných údajov".

Správu sa nepodarilo odoslať
Správa úspešne odoslaná